 
                    Local commercial neuf 86m² à HUNINGUE
Nouveauté Le Nouvel Immobilier à Huningue.
Vous êtes à la recherche d'un local commercial spacieux et moderne pour développer votre activité?
Nous vous proposons un local neuf a proximité immédiate de la Passerelle des 3 pays, idéalement situé à Huningue, dans l'Allée des Marroniers.
Points forts du bien:
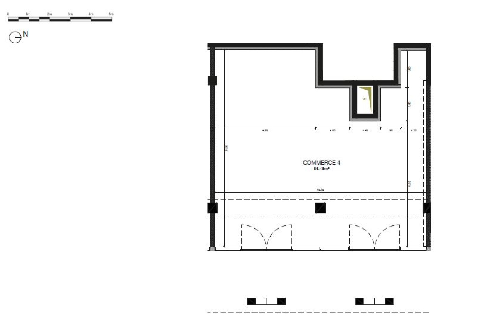
- surface de 86 m² offrant de multiples possibilités d'aménagement- localisation stratégique dans un quartier dynamique et en pleine expansion
- conception moderne et conforme aux normes d'accessibilité PMR
Localisation idéale:
- proximité immédiate avec la frontière suisse et les villes de Bâle et Weil amRhein, offrant une attractivité internationale
- accès facile aux principaux axes routiers et aux transports en commun: Ligne Tram 8 et autoroute A5, facilitant l'arrivée de vos clients et collaborateurs
- environnement urbain en plein développement, avec de nombreux commerces, services et infrastructures à proximité
- situé au cœur de la région des Trois Frontières, bénéficiant d'un bassin de clientèle varié et cosmopolite
Ce local est parfait pour une activité commerciale nécessitant de l'espace.Que vous souhaitiez ouvrir une boutique, un cabinet ou un bureau, ce bien saura répondre à vos attentes.
Pour plus d'informations ou pour organiser une visite, n'hésitez pas à nous contacter.
Honoraires charge vendeur. Mentions légales : SIREN : 890580376, Numéro RCS : 890 580 376 R.C.S. Mulhouse MAD Immobilier au 32 Rue de la Justice, 68100 Mulhouse.
CPI68022021000000010 Délivrée par la CCI Sud Alsace Mulhouse. Garant financier : GALIAN Assurances au 89 rue La Boétie 75008 Paris
 
                            
                                                                            Les informations recueillies sur ce formulaire sont enregistrées dans un fichier informatisé par La Boite Immo agissant comme Sous-traitant du traitement pour la gestion de la clientèle/prospects de l'Agence / du Réseau qui reste Responsable du Traitement de vos Données personnelles.
La base légale du traitement repose sur l’intérêt légitime de l'Agence / du Réseau.
Elles sont conservées jusqu'à demande de suppression et sont destinées à l'Agence / au Réseau.
Conformément à la loi « informatique et libertés », vous pouvez exercer votre droit d'accès aux données vous concernant et les faire rectifier en contactant l'Agence / le Réseau.
Si vous estimez, après avoir contacté l'Agence / le Réseau, que vos droits « Informatique et Libertés » ne sont pas respectés, vous pouvez adresser une réclamation à la CNIL.
Nous vous informons de l’existence de la liste d'opposition au démarchage téléphonique « Bloctel », sur laquelle vous pouvez vous inscrire ici : https://www.bloctel.gouv.fr 
Dans le cadre de la protection des Données personnelles, nous vous invitons à ne pas inscrire de Données sensibles dans le champ de saisie libre
Ce site est protégé par reCAPTCHA, les Politiques de Confidentialité et les Conditions d'Utilisation de Google s'appliquent.
                                                                    
 
                 
                         
                                             
                                             
                                            